Trilocale in vendita

Trieste, Scala Santa - Roiano
€ 185.000
3 locali 3 locali
74 Mq 74 Mq
1 bagno 1 bagno

Trilocale in vendita

Trieste, Scala Santa - Roiano

Descrizione annuncio

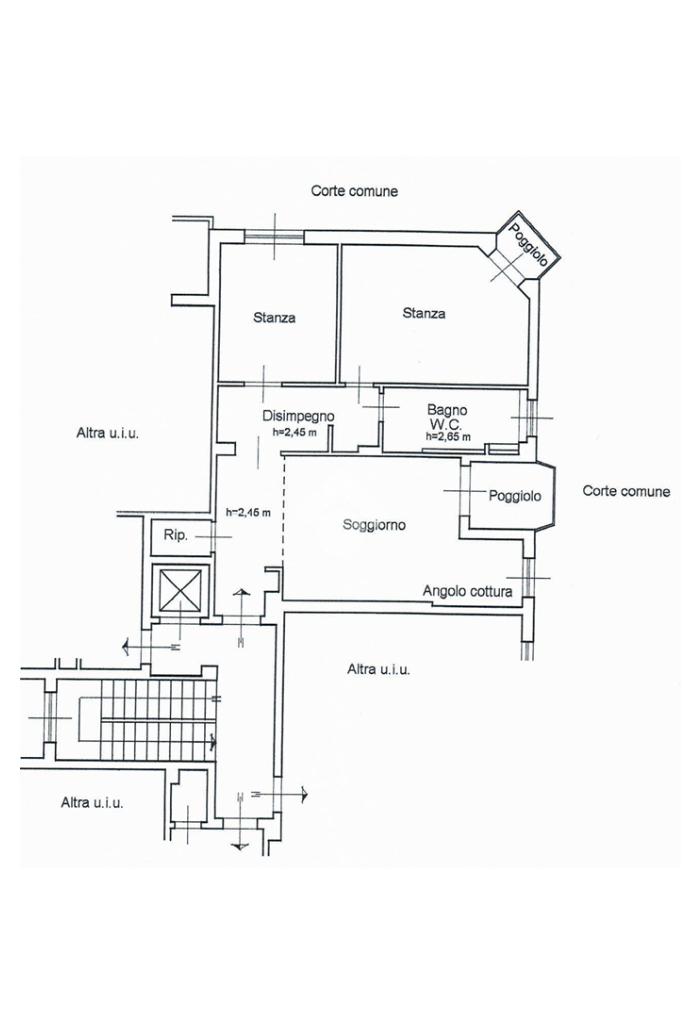
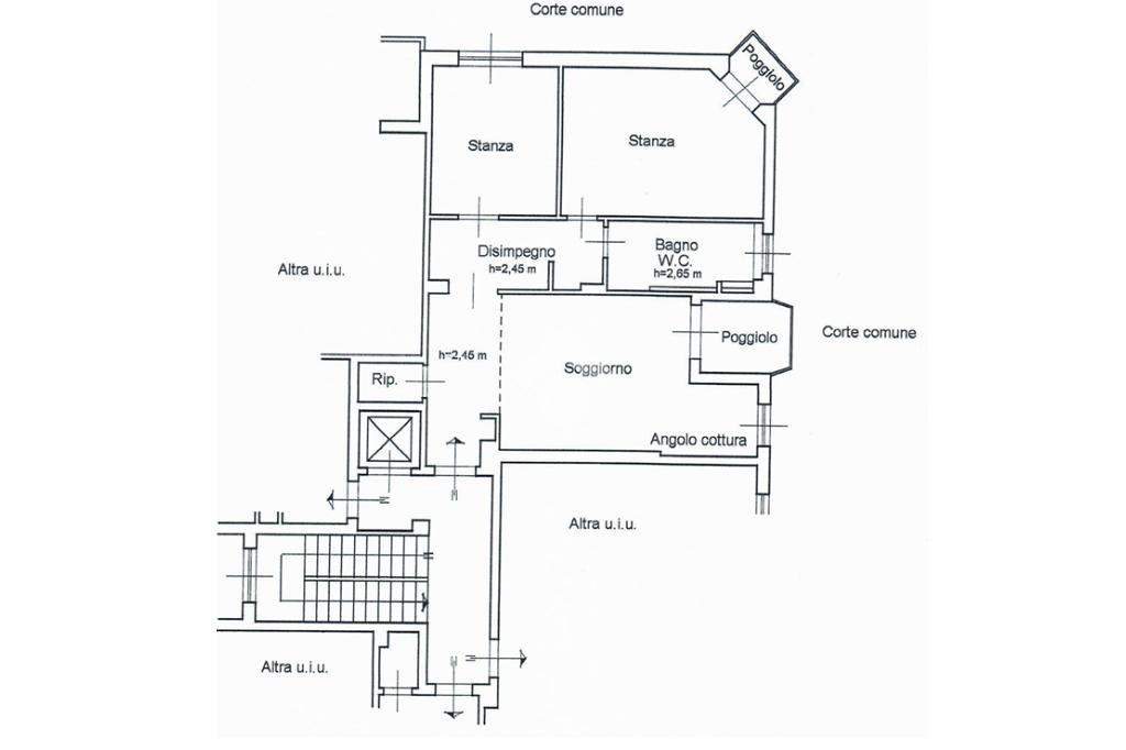
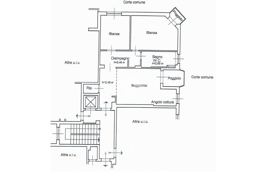
SCALA SANTA - Tecnocasa Roiano propone in vendita , come perfetto investimento, interessante trilocale recentemente ristrutturato con finiture eleganti e moderne. L'appartamento è attualmente locato con un contratto 4+4 con prima scadenza in Novembre 2026.

Sito al terzo piano di un piacevole condominio dotato di ascensore, è così composto: atrio d'ingresso, zona living con cucina a vista e uscita al balconcino, camera matrimoniale con ulteriore balcone, camera singola, bagno completo e finestrato, ripostiglio e zona lavanderia.
Conclude la proposta una cantina di proprietà; centralizzato, dotato di climatizzatore e porta blindata.

L'immobile grazie alle finiture e alla posizione, che regala un piacevole scorcio, è la soluzione ideale per chi desidera fare un'ottimo investimento in uno dei rioni più richiesti di Trieste

Hai trovato la casa giusta ma prima devi vendere o affittare la tua? Chiamaci e ti supporteremo con una consulenza mirata e gratuita.

Per maggiori informazioni contattaci: tel. 040.2602013 - e-mail tscn7

----------------------------------

Le informazioni presenti nell'annuncio non costituiscono elemento contrattuale.

Mostra tutto

Nelle vicinanze

Trasporto pubblico Trasporto pubblico
stazione di Trieste Centrale
stazione di Trieste Centrale
1,3 Km
Vetta Scorcola
Vetta Scorcola
970 m
Romagna
Romagna
990 m
Villan de Bachino
Villan de Bachino
250 m
Piazza tra i Rivi
Piazza tra i Rivi
430 m
Ricariche auto elettriche Ricariche auto elettriche
Eneldrive Ginestre
430 m
Eneldrive verso Opicina
1,7 Km
Eneldrive Porto de Barcola
2,2 Km
Eneldrive Ospedale Maggiore Di Trieste
2,2 Km
EnelDrive Granatieri
2,2 Km
Scuole Scuole
Scuola Primaria Emo Tarabocchia
330 m
Scuola elementare Bazoviški junaki - Scuola media Fran Erjavec - Glasbena Matica
350 m
Scuola Secondaria di I Grado Guido Brunner
380 m
Scuola Secondaria di Primo Grado Pietro Addobbati
570 m
Scuola Primaria Umberto Saba
580 m
Farmacia Farmacia
Farmacia
420 m
Farmacia Sponza
470 m
All'aquila Imperiale
850 m
Parafarmacia Alla Stazione
1,3 Km
Farmacia alla Croce Azzurra
1,3 Km
Ospedali Ospedali
Ospedale Maggiore
2,3 Km
Sanatorio Triestino
2,9 Km
Supermercati Supermercati
D Più Discount
220 m
Conad City
270 m
Pam
490 m
Supermercati
550 m
Coop
680 m
Negozi Negozi
Jerian
510 m
Dagri
560 m
Despar
1,2 Km
Cadenaro
1,4 Km
Negozi
1,4 Km
Bar Bar
Il Mio Bar
500 m
Caffè alla Stazione
1,4 Km
Corner Café
1,6 Km
Bar
1,7 Km
BarDestino
1,7 Km
Ristoranti Ristoranti
Ristorante Zuca Baruca
470 m
Pizzeria Capri
520 m
La pironada
530 m
Pizzeria Orizzonte
600 m
Antica Hostaria Bellavista
700 m
Mostra tutto

Caratteristiche

Rif.:
61146558
Piano:
3 di 6 con ascensore (Piano medio)
Balconi:
2
Camere da letto:
2
Arredamento:
Assente
Condizionamento:
Autonomo
Mostra tutto
Prezzo Prezzo
€ 185.000
Rata mutuo Rata mutuo
€ 872 / mese
Proponi il tuo prezzoProponi il tuo prezzo
Immobile valutato con T·Valuta

Classe Energetica

C
C
C
C
C
C
C
C
C
EP invernale del fabbricato:
EP estiva del fabbricato:
Anno di costruzione:
1963
Riscaldamento:
Centralizzato
Tipo impianto:
A radiatori
Tipo alimentazione:
Metano

Ti interessa visionare l'immobile?

Fissa un appuntamento  Fissa un appuntamento

Richiedi informazioni

Clicca su Leggi per aprire l'informativa
* Questi campi sono obbligatori

Calcola il tuo mutuo

Semplice e senza impegno
Anticipo

( % )
Mutuo

( % )

pochi semplici passi

inserisci i tuoi dati
Questionario completato
Grazie per aver richiesto un appuntamento senza impegno con un nostro Consulente del Credito e Assicurativo.

Hai inserito correttamente tutti i dati necessari e a breve riceverai una e-mail con un link da convalidare per inviare i tuoi dati.
Affiliato
Immobiliare Roiano Srl
Via Dei Saltuari, 1 34133 Trieste (TS)

Il nostro staff


  • Matteo Corti
    Responsabile

  • Marija Magdalena Zigante
    Coordinatrice

  • Sabrina Marchesi
    Affiliata
Via Dei Saltuari, 1 34133 Trieste (TS)
Zona: Trieste Roiano
Mostra su mappa
Affiliato
Immobiliare Roiano Srl
Via Dei Saltuari, 1 34133 Trieste (TS)

2026 Tecnocasa Franchising S.p.A. - P. IVA 08365160152 - Via Monte Bianco 60/A 20089 Rozzano (MI). Ogni agenzia ha un proprio titolare ed è autonoma. Privacy policy | Policy utilizzo | Cookie policy