Trilocale in vendita

Trieste, Via Martiri della Libertà - Commerciale
€ 290.000
Prezzo aggiornato
3 locali 3 locali
162 Mq 162 Mq
2 bagni 2 bagni

Trilocale in vendita

Trieste, Via Martiri della Libertà - Commerciale

Descrizione annuncio

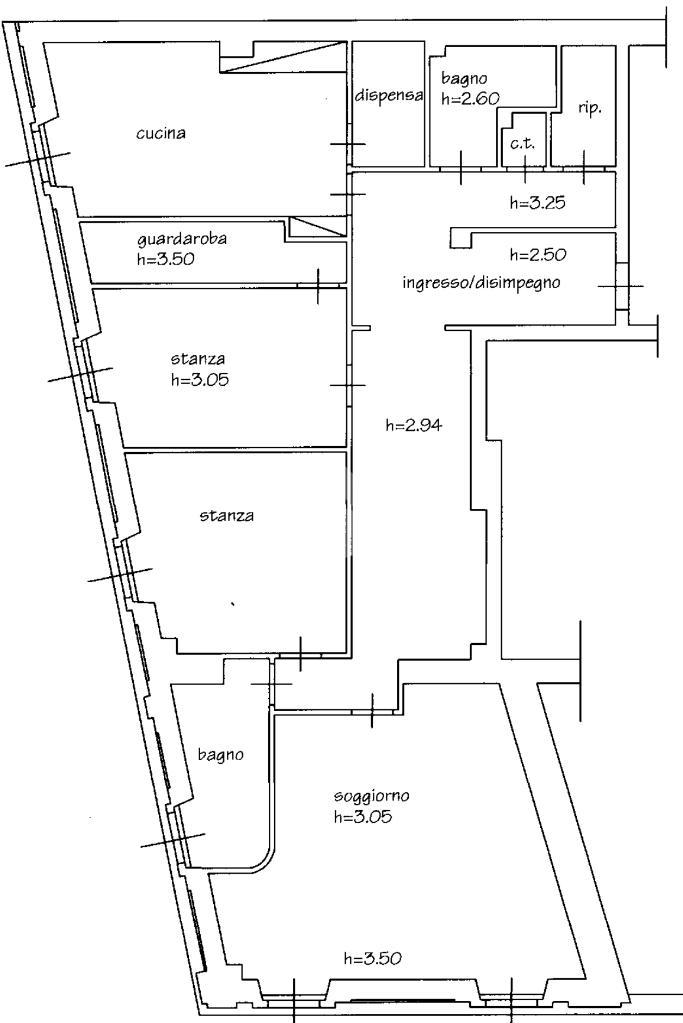
SCORCOLA BASSA - Elegante appartamento di 162 mq in palazzo d'epoca a pochi passi dal centro di Trieste


In un affascinante palazzo storico di inizio 900, completamente ristrutturato nei primi anni '90 e tutelato dalle Belle Arti, proponiamo in vendita un ampio appartamento di 162 mq situato al primo piano di un edificio esclusivo composto da sole 8 unità abitative.


La proprietà si distingue per il perfetto equilibrio tra il fascino dell'epoca e il comfort moderno: soffitti alti fino a 3,5 metri, ambienti luminosi e spaziosi, assenza di barriere architettoniche, ascensore, riscaldamento autonomo e climatizzazione con inverter garantiscono un'abitazione accogliente e funzionale tutto l'anno.


L'accesso all'appartamento è con porta blindata, un ampio ingresso porta alla cucina abitabile di ca 15mq con dispensa, bagno con doccia e due rispostigli.

Il corridoio conduce al salone doppio di ca 30mq, due camere matrimoniali ed il bagno finestrato con vasca idromassaggio.


L'edificio si trova in posizione strategica, a pochi metri da Piazza Oberdan e dal tram di Opicina, dalla Stazione Centrale di Trieste, in una zona servita da mezzi pubblici, negozi e servizi.


Soluzione ideale per chi desidera vivere il fascino dell'architettura storica nel cuore della città, senza rinunciare alle comodità moderne.


Possibilità di acquisto comodo posto auto coperto in autorimessa nelle immediate vicinanze della palazzina al prezzo di euro 40.000,00 (quarantamila/00).

Hai trovato la casa giusta ma prima devi vendere o affittare la tua? Chiamaci e ti supporteremo con una consulenza mirata e gratuita.

Per maggiori informazioni contattaci: tel. 040.2602013 - e-mail tscn7

----------------------------------

Le informazioni presenti nell'annuncio non costituiscono elemento contrattuale.

Mostra tutto

Nelle vicinanze

Trasporto pubblico Trasporto pubblico
stazione di Trieste Centrale
stazione di Trieste Centrale
380 m
Trieste Campo Marzio Smistamento
Trieste Campo Marzio Smistamento
2,4 Km
Piazza Casali
Piazza Casali
110 m
Piazza Oberdan
Piazza Oberdan
250 m
Trasporto pubblico
80 m
Ricariche auto elettriche Ricariche auto elettriche
Eneldrive Ospedale Maggiore Di Trieste
760 m
EnelDrive Granatieri
990 m
Eneldrive Ginestre
1,1 Km
Eneldrive Molo Sartorio
1,6 Km
Eneldrive Comune Di Trieste - Consigli Circoscrizionali
1,7 Km
Scuole Scuole
Scuola Elementare e Materna Ruggero Manna
70 m
Scuola Media Inferiore Guido Corsi
120 m
Università degli Studi di Trieste - Facoltà di Architettura e Psicologia
140 m
Conservatorio di Musica Giuseppe Tartini di Trieste
150 m
Università degli Studi di Trieste - Scuola Superiore di Lingue Moderne per Interpreti e Traduttori
220 m
Farmacia Farmacia
Farmacia alla Croce Azzurra
180 m
Farmacia
250 m
Farmacia Comunale - Al Cedro
280 m
Alla Madonna Del Mare
320 m
Parafarmacia Alla Stazione
350 m
Ospedali Ospedali
Ospedale Maggiore
880 m
Sanatorio Triestino
1,5 Km
IRCCS Materno Infantile Burlo Garofolo
2,4 Km
Supermercati Supermercati
Maxì
0 m
Tigotà
220 m
Pam
300 m
Eurospesa
300 m
iN's mercato
370 m
Negozi Negozi
Cadenaro
50 m
Negozi
100 m
Mazzorato Moda
210 m
Despar
390 m
Bottega del Mondo Senza Confini Brez meja
450 m
Bar Bar
Caffè alla Stazione
260 m
Bar
430 m
Corner Café
510 m
Russian
550 m
Bar Cattaruzza
590 m
Ristoranti Ristoranti
Ristorante Pepenero Pepebianco
60 m
Ristorante Fiorente
100 m
Trattoria Città di Londra
140 m
Kaori
140 m
Ristorante Vittorio Veneto
270 m
Mostra tutto

Caratteristiche

Rif.:
61128140
Piano:
1 di 2 con ascensore (Piano medio)
Camere da letto:
2
Arredamento:
Assente
Condizionamento:
Autonomo
Ascensore:
Mostra tutto
Prezzo Prezzo
€ 290.000
Prezzo box Prezzo box
€ 40.000
Rata mutuo Rata mutuo
€ 1.367 / mese
Spese annue Spese annue
€ 1.400
Proponi il tuo prezzoProponi il tuo prezzo

Classe Energetica

C
C
C
C
C
C
C
C
C
EP globale non rinnovabile:
59.48 kW h/m² anno
EP globale rinnovabile:
59.48 kW h/m² anno
EP invernale del fabbricato:
EP estiva del fabbricato:
Anno di costruzione:
1900
Riscaldamento:
Autonomo
Tipo impianto:
A radiatori
Tipo alimentazione:
Metano

Prezzo ridotto di €1 (7%%)

Ti interessa visionare l'immobile?

Fissa un appuntamento  Fissa un appuntamento

Richiedi informazioni

Clicca su Leggi per aprire l'informativa
* Questi campi sono obbligatori

Calcola il tuo mutuo

Semplice e senza impegno
Anticipo

( % )
Mutuo

( % )

pochi semplici passi

inserisci i tuoi dati
Questionario completato
Grazie per aver richiesto un appuntamento senza impegno con un nostro Consulente del Credito e Assicurativo.

Hai inserito correttamente tutti i dati necessari e a breve riceverai una e-mail con un link da convalidare per inviare i tuoi dati.
Affiliato
Immobiliare Roiano Srl
Via Dei Saltuari, 1 34133 Trieste (TS)

Il nostro staff


  • Matteo Corti
    Responsabile

  • Marija Magdalena Zigante
    Coordinatrice

  • Sabrina Marchesi
    Affiliata
Via Dei Saltuari, 1 34133 Trieste (TS)
Zona: Trieste Roiano
Mostra su mappa
Affiliato
Immobiliare Roiano Srl
Via Dei Saltuari, 1 34133 Trieste (TS)

2026 Tecnocasa Franchising S.p.A. - P. IVA 08365160152 - Via Monte Bianco 60/A 20089 Rozzano (MI). Ogni agenzia ha un proprio titolare ed è autonoma. Privacy policy | Policy utilizzo | Cookie policy