5 locali in vendita

Trieste, Via Commerciale - Commerciale
€ 290.000
5 locali 5 locali
142 Mq 142 Mq
2 bagni 2 bagni

5 locali in vendita

Trieste, Via Commerciale - Commerciale

Descrizione annuncio

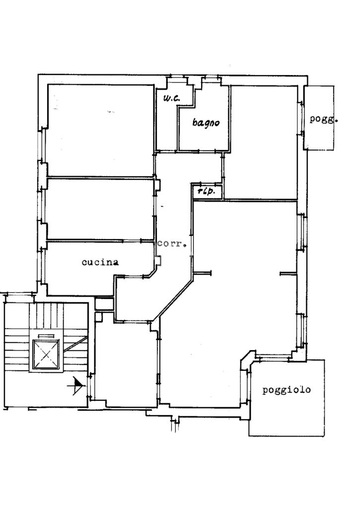
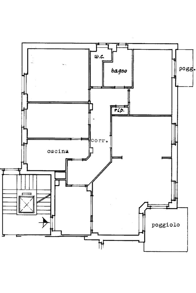
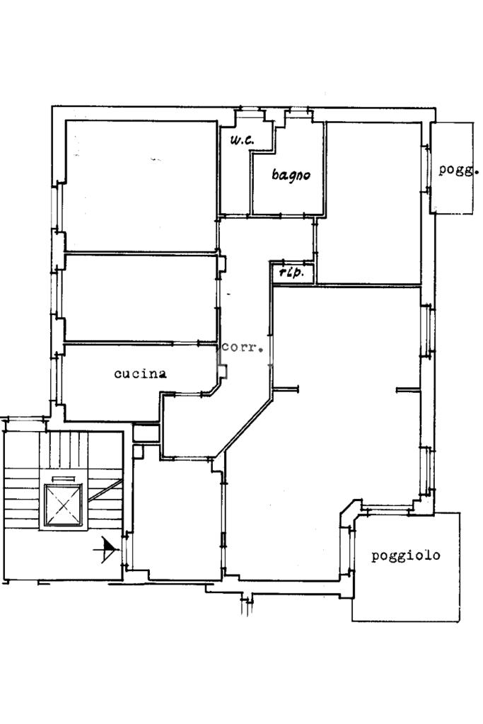
Via Commerciale - In uno dei contesti più richiesti della zona, Tecnocasa Roiano propone in vendita un ampio e luminoso appartamento di ben 142mq, sito all' interno di un condominio signorile, dotato di ascensore e posto auto condominiale.

L' appartamento è composto da un ampio atrio d'ingresso che conduce al salone doppio con accesso diretto al terrazzo panoramico di circa 16mq, cucina separata e abitabile, una camera matrimoniale, due bagni finestrati e due camere singole; di cui una con balcone. Completa la proprietà un comodo spazio in soffitta comune.

L' immobile è da ristrutturare e offre la possibilità di reinterpretare gli spazi secondo il proprio gusto e le proprie esigenze. La metratura generosa e la disposizione degli spazi rendono questo appartamento estremamente versatile , adatto a famiglie o a chi desidera ampi ambienti da personalizzare, con una vista davvero caratteristica.

In attesa dati Ape.

Hai trovato la casa giusta ma prima devi vendere o affittare la tua? Chiamaci e ti supporteremo con una consulenza mirata e gratuita.

Per maggiori informazioni contattaci: tel. 040.2602013 - e-mail tscn7@

----------------------------------

Le informazioni presenti nell' annuncio non costituiscono elemento contrattuale.

Mostra tutto

Nelle vicinanze

Trasporto pubblico Trasporto pubblico
stazione di Trieste Centrale
stazione di Trieste Centrale
840 m
Vetta Scorcola
Vetta Scorcola
240 m
Romagna
Romagna
300 m
28
28
20 m
Trasporto pubblico
360 m
Ricariche auto elettriche Ricariche auto elettriche
Eneldrive Ginestre
620 m
Eneldrive Ospedale Maggiore Di Trieste
1,5 Km
EnelDrive Granatieri
1,8 Km
Eneldrive Comune Di Trieste - Consigli Circoscrizionali
1,8 Km
Eneldrive verso Opicina
2,1 Km
Scuole Scuole
European School of Trieste
190 m
Scuola elementare Bazoviški junaki - Scuola media Fran Erjavec - Glasbena Matica
610 m
Scuola Primaria Emo Tarabocchia
620 m
Scuola Secondaria di I Grado Guido Brunner
620 m
Scuola Primaria Vittorio Longo
630 m
Farmacia Farmacia
Farmacia Sponza
560 m
All'aquila Imperiale
580 m
Farmacia alla Croce Azzurra
690 m
Parafarmacia Alla Stazione
830 m
Farmacia
870 m
Ospedali Ospedali
Ospedale Maggiore
1,6 Km
Sanatorio Triestino
2,2 Km
Supermercati Supermercati
D Più Discount
590 m
Coop
610 m
Conad City
640 m
Pam
640 m
iN's
860 m
Negozi Negozi
Jerian
560 m
Despar
810 m
Cadenaro
840 m
Caddy's
870 m
Negozi
880 m
Bar Bar
Il Mio Bar
550 m
Corner Café
910 m
Caffè alla Stazione
940 m
Bar
940 m
BarDestino
980 m
Ristoranti Ristoranti
Pizzeria Capri
580 m
Al tempo perso
620 m
Ristorante cinese Fior di Loto
670 m
Wasabi
700 m
Ristorante Pizzeria Spaccanapoli
710 m
Mostra tutto

Caratteristiche

Rif.:
61109130
Piano:
2 di 4 con ascensore (Piano alto)
Posti auto:
1
Balconi:
1
Terrazzi:
1
Camere da letto:
3
Mostra tutto
Prezzo Prezzo
€ 290.000
Rata mutuo Rata mutuo
€ 1.341 / mese
Proponi il tuo prezzoProponi il tuo prezzo
Immobile valutato con TecnoValore

Classe Energetica

Questo immobile è esente da classe energetica
Anno di costruzione:
1961
Riscaldamento:
Centralizzato
Tipo impianto:
A radiatori
Tipo alimentazione:
Metano

Ti interessa visionare l'immobile?

Fissa un appuntamento  Fissa un appuntamento

Richiedi informazioni

* Questi campi sono obbligatori

Calcola il tuo mutuo

Semplice e senza impegno
Anticipo

( % )
Mutuo

( % )

pochi semplici passi

inserisci i tuoi dati
Questionario completato
Grazie per aver richiesto un appuntamento senza impegno con un nostro Consulente del Credito e Assicurativo.

Hai inserito correttamente tutti i dati necessari e a breve riceverai una e-mail con un link da convalidare per inviare i tuoi dati.
Affiliato
Immobiliare Roiano Srl
Via Dei Saltuari, 1 34133 Trieste (TS)

Il nostro staff


  • Matteo Corti
    Responsabile

  • Marija Magdalena Zigante
    Coordinatrice

  • Sabrina Marchesi
    Affiliata
Via Dei Saltuari, 1 34133 Trieste (TS)
Zona: Trieste Roiano
Mostra su mappa
Affiliato
Immobiliare Roiano Srl
Via Dei Saltuari, 1 34133 Trieste (TS)

2025 Tecnocasa Franchising S.p.A. - P. IVA 08365160152 - Via Monte Bianco 60/A 20089 Rozzano (MI). Ogni agenzia ha un proprio titolare ed è autonoma. Privacy policy | Policy utilizzo | Cookie policy